JB272頭城大地坪理想透天

125022.21萬/坪

礁溪二店加盟店(全興房屋企業社)

03-9875221

 預約看屋  線上提問

JB272頭城大地坪理想透天

S2909962

039875221

買屋 / 宜蘭縣 / 頭城鎮 /
JB272頭城大地坪理想透天
  • 相似物件推薦

  • GB293青...
    1380
    1480萬
    建坪:52.325
    頭城鎮青雲路二段
  • CB314頭...
    1468
    1598萬
    建坪:62.015
    頭城鎮濱海路六段

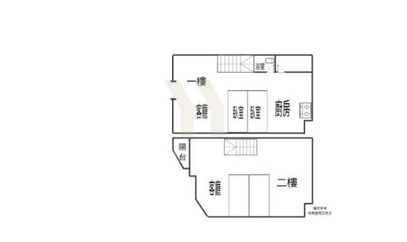
物件詳細資料

點閱次數:194次

  • 房屋資訊

    外牆建材
    二丁掛
    車位/備註
    入門朝向
    座西北 朝東南
    現況
    空屋
    面臨路寬
    12 米
    建築結構
    鋼筋混泥土加強磚造
  • 謄本資料

    主建物
    56.29 坪
    附屬建物
    公共設施
    車位坪
    地下室
    地坪
    45.83 坪
    謄本主要用途
    *小數點取二位第三位無條件捨去

周邊資訊

市場

頭城市場

鄰近學校(2公里內)

縣立頭城國小,縣立頭城國中,縣立人文國民中(小)學

商圈

,頭城火車站、頭城火車站

特色說明

  • 近學校
  • 近市場
  • 近商圈
  • 近蘭博;烏石港、重劃區 近市區、學區,生活機能佳,交通便利 開窗可見碧海藍天;盡收眼底 地點坐落精華地段 透天格局,理想居所投資自用首選,增值性強

地圖/街景

實價登錄