GB285宜蘭市中心河濱透天
880
萬
32.36
萬/坪
詳細資料
周邊
特色說明
地圖街景
實價登錄
宜蘭加盟店
(二十一世紀房產有限公司)
03-9259588
預約看屋
線上提問
GB285宜蘭市中心河濱透天
S2850814
039259588
預約
提問
一般會員
帳號
此欄位必填!
密碼
此欄位必填!
登入
送出註冊/登入視同您已閱讀,並同意
權利義務說明內容
註冊
|
忘記密碼
此欄位必填!
此欄位必填!
此欄位必填!
登入
忘記密碼
|
忘記密碼
Email
簡訊
請您輸入店代號及帳號,我們會儘速將您的密碼傳送至您的信箱或手機簡訊。
店代號
帳 號
送出
宏鎰集團蘭陽21世紀|宜蘭買房|宜蘭賣房|宜蘭房仲團隊|房價查詢・買賣・土地投資
首頁
集團簡介
經營理念
企業標誌
企業榮譽
未來展望
企業CF
隱私權聲明
事業佈局
房仲事業部
餐飲事業部
公共造產活化
CSR企業責任
最新消息
活動快訊
新聞發佈
響應公益
房產資訊
房市趨勢
買屋指南
賣屋須知
宜蘭房產話題
服務據點
門店介紹
業務專網
特約商店
特約商家總覽
宜蘭勁好康徽章
人才招募
聯絡我們
聯絡我們
買屋
/
宜蘭縣
/
宜蘭市
/
GB285宜蘭市中心河濱透天
請注意,上方物件照片如有街景,為物件附近環境介紹,非物件本身。
編號:
S2850814
880
萬
32.36
萬/坪
貸款試算
格局
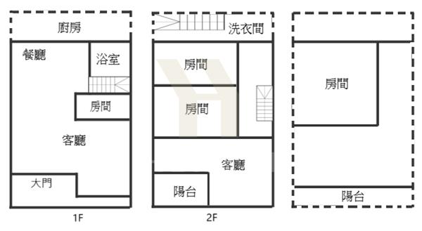
3房 2 廳 2 衛
格局
屋齡
49.2 年
屋齡
建坪
27.2 坪
建坪
地址
宜蘭市西門路
型態/類別
透天 /住家
樓別/樓高
1-2 /2
主+附
27.2 坪
地坪
18.46 坪
宜蘭加盟店
(二十一世紀房產有限公司)
宜蘭縣宜蘭市中山路一段808號
03-9259588
立即預約看屋
線上提問
先生
小姐
方便聯絡時間
皆可
早上
下午
晚上
我同意條款
隱私權聲明
預約看屋
先生
小姐
我同意條款
隱私權聲明
線上提問
相似物件推薦
LB154宜...
890
萬
建坪:
29.88
4
房
宜蘭市民權路三段
CB303宜...
798
萬
建坪:
29.94
4
房
宜蘭市民權路三段
CB306宜...
799
萬
888萬
建坪:
25.15
3
房
宜蘭市慈安路
CB293泰...
898
萬
938萬
建坪:
30.71
4
房
宜蘭市泰山路
LB023宜...
798
萬
建坪:
24.84
6
房
宜蘭市農權路三段
CB313宜...
980
萬
1298萬
建坪:
25.74
3
房
宜蘭市慈安路
物件詳細資料
點閱次數:288次
房屋資訊
外牆建材
馬賽克
車位/備註
無
入門朝向
座西南 朝東北
現況
空屋
面臨路寬
5 米
建築結構
鋼筋混泥土加強磚造
0000014249
0000014250
謄本資料
主建物
27.2 坪
附屬建物
公共設施
車位坪
地下室
地坪
18.46 坪
謄本主要用途
*小數點取二位第三位無條件捨去
特色說明
近超商.傳統市場.醫療機構.公園.警察局.新月廣場.金融機構.北門市場.市中心.生活機能佳
地圖/街景
實價登錄